广东东晟密封科技有限公司

32载专注密封圈研发生产厂家 CCTV.央视访谈企业一航天级研发基地
18925433252 18925433252
聚焦东晟 · 资讯分享
PHD/P 组合密封
返回列表 来源: 东晟密封 发布日期: 2021.06.29

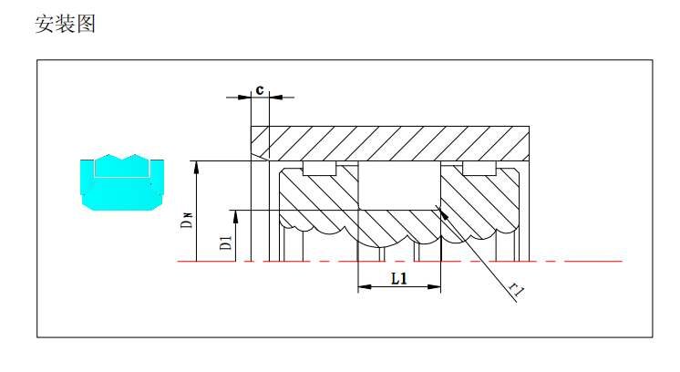
PHD/P 组合密封是一种高压重型活塞密封件,具有良好的泄漏控制,抗挤出及耐磨损性能。PHD/P 密封件是一个由聚氨酯密封环、一个弹性体施力圈和两个挡圈组合成的。它采用预先设定的过盈配合,通过弹性体部分施加预紧力,即使在系统压力很低时,也能保证良好的密封作用。随着压力升高,弹性体部分受系统压力而施力,从而在径向对密封环产生向上的推力,起到密封作用。挡圈可防止滑环密封被挤出,保证了即使在恶劣条件下使用也具有长寿命。

PHDP组合密封

PHD/P 组合密封优点:

乐发vll 1.沟槽结构简单,很好的密封效果

2.耐磨性优异,允许更大的配合间隙,故可降低加工费用

乐发vll 3.使用寿命长

PHD/P 组合密封应用案例 :

PHD/P 组合密封推荐用于工作环境非常恶劣的液压缸的双向作用活塞,例如:挖掘机、重型液压缸

PHD/P 组合密封工作条件:

1.压力: 达 40MPa

乐发vll 2.速度: 达 0.5m/s

3.温度: —35℃至+110℃

乐发vll 4.介质: 矿物液压油


咨询热线

18925433252